

> Á¦Ç°¼Ò°³ >
º¯¾Ð±â
| Ratings |
| Phase : Three |
| Frequency : 50 / 60 Hz |
| High Voltage : 66kV and Below |
| Low Voltage : 33kV and Below |
| Capacity : 2,000kVA through 30,000kVA |
| Applicable Standards : KS, IEC, BSI, ANSI, IEEE, JEC |
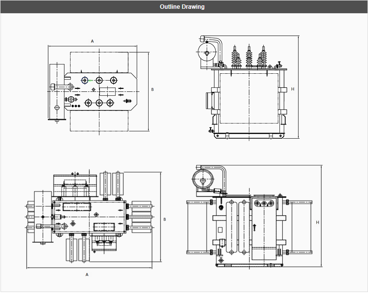
| Dimensions (Open Type) |
| Capacity (kVA) |
Dimension(mm) |
Oil(L) |
Total W.T (kg) |
| A |
B |
H |
| 2000 |
2350 |
1960 |
2500 |
1700 |
6200 |
| 2500 |
2400 |
2200 |
2600 |
2000 |
7000 |
| 3000 |
2600 |
2700 |
2700 |
2450 |
8600 |
| 5000 |
2700 |
2850 |
3100 |
2600 |
11000 |
| 6000 |
3000 |
3580 |
3300 |
3200 |
12000 |
| 7500 |
3400 |
3600 |
3500 |
4700 |
13200 |
| 10000 |
3400 |
3700 |
3800 |
5500 |
16200 |
| 15000 |
3600 |
3800 |
4000 |
6000 |
17500 |
| 20000 |
4000 |
5000 |
4300 |
6700 |
19000 |
| Dimensions (Cable Box Type) |
| Capacity (kVA) |
Dimension(mm) |
Oil(L) |
Total W.T (kg) |
| A |
B |
H |
| 2000 |
2300 |
1900 |
2500 |
1700 |
6200 |
| 2500 |
2450 |
2700 |
2700 |
2000 |
7000 |
| 3000 |
2600 |
2800 |
2800 |
2450 |
8600 |
| 5000 |
3700 |
3200 |
2850 |
2600 |
11000 |
| 6000 |
4400 |
3250 |
3300 |
3200 |
12000 |
| 7500 |
4600 |
3300 |
3500 |
4700 |
13200 |
| 10000 |
4800 |
3400 |
3900 |
5500 |
16200 |
| 15000 |
5000 |
3600 |
4100 |
6000 |
17500 |
| 20000 |
5600 |
4000 |
4500 |
6700 |
19000 |
